广东风楼阁全国信息,最新全国茶楼论坛入口,长沙桑拿论坛,长沙夜生活,长沙品茶网,一品楼ypl免费论坛

欢迎您访问青岛乐中环保科技有限公司官方网站!

当前位置:首页 > 新闻资讯 > 新闻资讯
新闻资讯
诊所废水处理设备_诊所污水处理设备厂家
标签:     添加时间:2023-11-10 浏览次数:2510

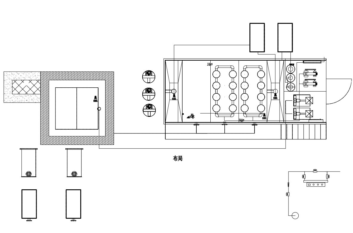
诊所污水处理设备剖面图


<延伸阅读:诊所废水处理设备>


  诊所废水的主要来源可以包括以下几个环节:

  1.医疗废水:包括医疗设备清洗废水、手术室冲洗废水等。

  2.实验室废水:实验室试剂、化学品的使用产生的废水。

  3.门诊诊疗废水:来自病人诊疗过程中使用的洗手间、洗患者部位等废水。

  4.药剂废水:药物的配制、使用过程中产生的废水。

  这些废水的特点包括:

  1.含有有机物:来自医疗设备清洗、药物配制等过程。

  2.可能含有药物残留:部分药物未被完全代谢,可能存在于废水中。

  3.可能含有细菌和病原体:来自患者体液等。

  4.可能含有化学物质:来自实验室试剂和化学药品使用。

  对于诊所废水的处理,常见的处理工艺包括:

  1.生物处理工艺:通过活性污泥、生物膜反应器等生物处理单元,利用微生物将有机物降解为较为稳定的无机物。

  2.物理化学处理工艺:包括沉淀、过滤、氧化等工艺,可去除悬浮物、药物残留和部分有机物。

  3.紫外线消毒:用于灭活废水中的细菌和病原体。

  4.活性炭吸附:用于去除废水中的有机物和药物残留。

  5.反渗透:用于去除废水中的溶解性固体和药物残留。

  具体处理流程可以根据废水的具体特性而定,但通常包括预处理、主处理和后处理等阶段。


<延伸阅读:医疗废水处理案例>



诊所污水处理设备发货现场照片

  当涉及诊所废水处理时,可以采用多种处理方法和工艺流程的组合,以确保对各种污染物的有效去除。下面我们一起看一下比较主要的诊所废水处理工艺流程:

  1.预处理阶段:

  -格栅除渣:废水首先通过格栅,去除大颗粒物和悬浮物,以防止对后续处理单元的损害。

  -沉淀池:废水经过格栅后,进入沉淀池,使悬浮物沉淀并形成污泥。这有助于减少废水中的悬浮固体。

  2.主处理阶段:

  -生物处理:废水进入生物处理单元,如活性污泥反应器(ASR)或生物膜反应器(MBR)。微生物在这里分解有机物,将其转化为较为稳定的无机物。这一阶段主要处理有机物负荷。

  -曝气:曝气是生物处理的一部分,通过向废水中注入氧气,促使微生物更有效地降解有机物。

  -二沉池:生物反应后的水经过二沉池,使生物污泥沉淀下来,清水通过上面流出。这有助于分离废水中的生物污泥。

  3.物理化学处理阶段:

  -过滤:废水通过过滤单元,进一步去除残留的固体颗粒和生物污泥。

  -活性炭吸附:废水经过活性炭床,活性炭吸附有机物和药物残留。

  4.高级处理阶段:

  -反渗透:废水经过反渗透膜,去除水中的离子、溶解性有机物和残余的微生物,以达到更高的水质标准。

  -紫外线消毒:废水中的细菌和病原体通过紫外线照射,以确保排放水质符合卫生标准。

  5.后处理阶段:

  -pH调整:可以对处理后的水进行pH调整,确保排放水的酸碱度符合环保要求。

  -消毒:在需要的情况下,可以使用其他消毒手段,如氯处理,以确保最终排放水中没有活性的细菌和病原体。

  以上流程是一种综合考虑生物、物理和化学处理的废水处理工艺流程。具体的处理方法和工艺流程可能会根据废水的性质、处理要求和法规标准的差异而有所不同。在设计废水处理系统时,需要根据具体情况灵活调整。




诊所一体化污水处理设备


<延伸阅读:口腔门诊污水处理流程>


  下面我们一起跟随诊所污水处理设备厂家乐中环保一起来看一看诊所污水处理设备的功能和特点吧:

  诊所污水处理设备的构造可以因应具体的工艺和需求而有所不同,但通常包括以下几个主要的组成部分:

  1.格栅装置:

  -构造:格栅装置通常包括机械格栅和清污机构?;蹈裾び山鹗艋蛩芰现瞥桑浼湎洞笮】筛菪枰髡?。清污机构用于定期清理格栅上的固体废物。

  -功能:机械格栅用于去除废水中的大颗粒物和悬浮物,防止对后续处理单元造成损害。

  2.生物处理单元:

  -活性污泥反应器(ASR)或生物膜反应器(MBR):

  -构造:包括反应池、曝气系统、二沉池等组件。反应池通常由混凝土或玻璃钢制成,曝气系统提供充足的氧气供给微生物降解有机物。

  -功能:生物处理单元用于将有机物分解为较为稳定的无机物,促进微生物的生长和降解废水中的有机负荷。

  3.物理化学处理单元:

  -过滤装置:

  -构造:过滤装置包括过滤介质、支撑结构和排污系统。过滤介质通常为砂、煤层等,支撑结构由金属或混凝土构成。

  -功能:过滤装置用于进一步去除残留的悬浮物和生物污泥。

  -活性炭吸附装置:

  -构造:活性炭吸附装置包括装载活性炭的容器和供气系统。

  -功能:用于去除废水中的有机物和药物残留。

  4.高级处理单元:

  -反渗透装置:

  -构造:反渗透装置包括反渗透膜、压力容器和调节系统。

  -功能:反渗透装置用于去除废水中的溶解性离子、有机物和微生物,提高水质。

  -紫外线消毒装置:

  -构造:紫外线消毒装置包括紫外线灯管、反应室和电源系统。

  -功能:用于杀灭废水中的细菌和病原体,确保排放水质符合卫生标准。

  5.配套设备:

  -泵站:用于输送废水至不同处理单元。

  -控制系统:包括传感器、自动化设备和监控系统,用于实时监测和调节处理过程。

  需要注意的是,以上仅是一种可能的构造,具体的诊所污水处理设备的构造还取决于处理工艺的选择、处理规模、水质要求等因素。在设计时,需要根据具体情况进行调整和优化。

  以上就是由诊所污水处理设备厂家乐中环保带来的诊所废水处理的有用分享了,如果你有其他问题,也欢迎联系乐中环保,获得帮助。




全国服务热线:【15244289576】
全国服务热线:【15165428330】

上一篇: 生活污水处理设备_生活废水处理设备厂家                 下一篇: 豆制品废水处理设备_豆制品污水处理设备厂家
联系我们
联系电话:
15244289576
电子邮箱:
15244289576@139.com
地址:
青岛市黄岛区江山南路富安国际大厦
版权所有 ? 2020-2021青岛乐中环??萍加邢薰?a rel="nofollow"> 备案号:鲁ICP备2020038556号-1技术支持:新蓝网络
   报价咨询     电话:15244289576
   姓名:
   公司:
   电话:
   0532-86720297

微信服务号